Chez Urbat, vous avez tout d'un propriétaire !

Perspective côté jardin
Dernières opportunités
  • Dernières opportunités
  • Livraison
  • LMNP
  • Zone B2

Programme neuf : FAIRPLAY

Pau - 64000
T2 disponible 184 500 € Simuler mon emprunt Livraison : 3ème trim. 2025
FAIRPLAY
Pau - 64000
Je souhaite acheter pour :
Habiter
1

Trouvez votre logement neuf à Lons

Des appartements lumineux et spacieux au prix juste
1 logement disponible dans cette résidence
Pièces
Rentabilité meublé
Loyer meublé
Dispositifs
Étage
Orientation
Extérieur
TVA
20%
Prix
  • T2 - 43m²

    3.51%
    540€ / mois
    LMNP, Zone B2
    2ème
    Ouest
    Terrasse
    TVA 20.00%
    TVA 20.00%
    184 500 € parking inclus
    184 500 €
  • Dernières opportunités
  • Livraison
  • LMNP
  • Zone B2
Perspective côté jardin
Pau - 64000 FAIRPLAY Livraison : 3ème trim. 2025
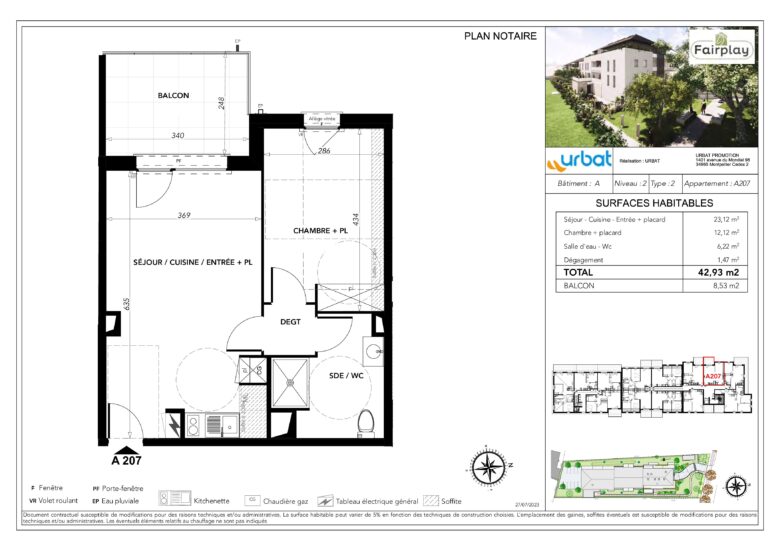
Lot A207 T2 - 43m² 184 500 € 20.00% 184 500 € 20.00%
Rentabilité nu : 3.22%
Loyer nu : 495€ / mois
Rentabilité meublé : 3.51%
Loyer meublé : 540€ / mois
Dispositif fiscal : LMNP / Zone B2
Étage : 2ème
Orientation : Ouest
Terrasse : 8m²
Parking : Parking extérieur
0567220054*

*prix d’un appel local / Vos interlocuteurs sont disponibles du Lundi au Vendredi de 9h à 18h

2

Découvrez notre programme neuf FAIRPLAY

Ma résidence en détail

Un cocon intimiste face à l’hippodrome

Propriétaire à Pau, vous en rêviez ! Urbat vous offre le Nord et le quartier recherché de l’hippodrome, à 13 minutes du centre-ville et à deux pas de l’A64 et l’A65. Ce que vous aimez de votre résidence, c’est son architecture, contemporaine, classe et sans prétention et l’intimité de ses 2 halls desservant 29 appartements seulement. Parfait pour vous ! 
Votre résidence a vraiment tout pour plaire : un jardin arboré, un parking couvert, un local à deux-roues. Le truc en plus et pas des moindres ? Des caves éclairées en sous-sol, super pratiques pour vous qui manquez toujours de place.

Eligibilité :  Résidence éligible LMNP by Urbat. Une offre clé en main avec 3 packs : équipements et meubles + gestion comptable et fiscale + gestion locative du bien. 
Prix indicatifs TTC en TVA 20% – Le non-respect des engagements de location entraine la perte du bénéfice des incitations fiscales. Investir dans l’immobilier comporte des risques.

Prestations de la résidence :

Des équipements utiles et des services de valeur
  • MOBILITÉ
    • Parking sécurisé
    • Local vélo augmenté
    • Dépose minute
  • ENERGIES
    • Chaudière gaz
  • LOISIRS / CULTURE
    • Internet dans toute la résidence

Mon appartement en détail :

Des espaces à vivre du sol au plafond
  • Entrée
    • Contrôle d'accès par vidéophone
    • Régulateur général de température
    • Rangements agiles
  • Séjour
    • Portes-fenêtres en PVC
    • Double vitrage
    • Peinture lisse sur les murs
    • Volets roulants électriques
  • Cuisine
    • Cuisine ouverte sur séjour
    • Pose de mobilier pour les T1 et T2
  • Chambres
    • Volets roulants
  • Salles d'eau
    • Large choix de faïence
    • Meuble vasque avec ciel lumineux
    • Sèche-serviette
  • Balcon/Terrasse/Jardin
    • Applique lumineuse
Ça bouge dans le quartier ! 443 Boulevard Cami Salié  64000 PAU

Les + de ma résidence

  • hall multifonctions
    Hall multifonctions
Mon appartement

Des espaces à vivre du sol au plafond

Vous êtes chanceux ! Votre appartement, 2, 3 ou 4 pièces a tout ! De beaux espaces à vivre, de grandes baies vitrées, un extérieur généreux donnant sur le jardin, des finitions hyper actuelles et complètement vous. Évidemment, les toilettes sont séparées, la salle de bain déjà équipée, la cuisine ouverte. Urbat a tout prévu pour vous rendre la vie facile.

ToulouseBerdoulat Vue Int 01
This color would be great for your apartment!
URBAT À MES CÔTÉS

Concrétiser mon projet, maintenant !

À ce stade, vous n’êtes plus là par hasard. Devenir propriétaire était au fond de vous, vous l’avez compris. Pour vous permettre de donner vie à cette idée, Urbat vous accompagne de bout en bout sans jamais vous lâcher. C’est le moment d’oser. Nous sommes à vos côtés !

3

FAIRPLAY étape par étape

Avancée du projet
  • Avant-première
  • Commercialisation
  • Travaux en cours
  • Livraison 3ème trim. 2025
Intéressé par un logement ?

Nos conseillers sont à l'écoute de vos besoins et de vos attentes et cela à chaque étape de votre projet immobilier.

0567220054*

*prix d’un appel local / Vos interlocuteurs sont disponibles du Lundi au Vendredi de 9h à 18h

Il est temps de prendre contact

Vous le savez maintenant, vous avez tout d’un propriétaire, faites le point avec nos conseillers.

0567220054*

*prix d’un appel local / Vos interlocuteurs sont disponibles du Lundi au Vendredi de 9h à 18h