Chez Urbat, vous avez tout d'un propriétaire !

Perspective côté rue
Top premier achat
  • Top premier achat
  • Travaux en cours
  • Zone A
  • LMNP
  • PTZ+

Programme neuf : HORIZON MINIMES - Prix Maitrisés

Toulouse - 31200
T4 disponible 244 500 € Simuler mon emprunt Livraison : 2ème trim. 2026
HORIZON MINIMES - Prix Maitrisés
Toulouse - 31200
Je souhaite acheter pour :
Habiter
1

Trouvez votre logement neuf à Toulouse

Des appartements lumineux et spacieux au prix juste
1 logement disponible dans cette résidence
Pièces
Rentabilité meublé
Loyer meublé
Dispositifs
Étage
Orientation
Extérieur
TVA
20%
Prix
  • T4 - 67m²

    0.00%
    Zone A, LMNP, PTZ+
    1er
    Sud-Est
    Terrasse
    TVA 20.00%
    TVA 20.00%
    244 500 € parking inclus
    244 500 €
  • Top premier achat
  • Travaux en cours
  • Zone A
  • LMNP
  • PTZ+
Perspective côté rue
Toulouse - 31200 HORIZON MINIMES - Prix Maitrisés Livraison : 2ème trim. 2026
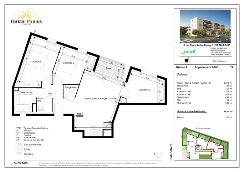
Lot A105 T4 - 67m² 244 500 € 20.00% 244 500 € 20.00%
Dispositif fiscal : Zone A / LMNP / PTZ+
Étage : 1er
Orientation : Sud-Est
Terrasse : 3m²
Parking : Parking sous-sol
04 67 14 13 29*

*prix d’un appel local / Vos interlocuteurs sont disponibles du Lundi au Vendredi de 9h à 18h

2

Découvrez notre programme neuf HORIZON MINIMES - Prix Maitrisés

Ma résidence en détail

Un écrin intimiste et chaleureux à découvrir à Toulouse

Au Nord du centre-ville de Toulouse, découvrez notre nouvelle résidence située à seulement quelques pas du quartier prisé et résidentiel des Minimes. Au cœur de cet emplacement paisible et verdoyant, idéal pour ceux à la recherche du calme proche du centre-ville, vous retrouvez une grande variété de commerces de proximité, restaurants et cafés. Pour vos enfants, vous profitez de plusieurs établissements scolaires, du primaire au lycée.  Les transports en commun, grâce aux divers arrêts de bus, à la station de métro à proximité ou encore l’accès rapide en voiture à l’autoroute A62 témoignent de l’accessibilité parfaite du quartier.
Vous êtes amateur de promenades en plein air ? Profitez des berges du canal du Midi et de ses magnifiques paysages ainsi que de plusieurs parcs et jardins.  
En moins de 15 minutes, vous rejoignez des zones d’activité majeures : le siège d’Airbus, celui de Thalès, la ZAC Andromède ou encore l’aéroport de Toulouse-Blagnac.
En clair, vous faites le choix d’un quartier animé, idéal pour vivre à Toulouse, riche de tous les services et commerces utiles tout en restant proche du centre historique de la ville rose.

N’attendez plus, et découvrez vite Horizon Minimes, véritable écrin intimiste à Toulouse !

Eligibilité : Résidence éligible LMNP by Urbat. Une offre clé en main avec 3 packs : équipements et meubles + gestion comptable et fiscale + gestion locative du bien. Prêt à Taux 0% – Prix TTC Hors-Stationnements. Loi Pinel (Le non-respect des engagements locatifs entraîne la perte des incitations fiscales. Investir dans l’immobilier comporte des risques)

Ça bouge dans le quartier ! 10 rue Pierre-Marius Dulong  31200 TOULOUSE
This color would be great for your apartment!
URBAT À MES CÔTÉS

Concrétiser mon projet, maintenant !

À ce stade, vous n’êtes plus là par hasard. Devenir propriétaire était au fond de vous, vous l’avez compris. Pour vous permettre de donner vie à cette idée, Urbat vous accompagne de bout en bout sans jamais vous lâcher. C’est le moment d’oser. Nous sommes à vos côtés !

3

HORIZON MINIMES - Prix Maitrisés étape par étape

Avancée du projet
  • Avant-première
  • Commercialisation
  • Travaux en cours
  • Livraison 2ème trim. 2026
Intéressé par un logement ?

Nos conseillers sont à l'écoute de vos besoins et de vos attentes et cela à chaque étape de votre projet immobilier.

04 67 14 13 29*

*prix d’un appel local / Vos interlocuteurs sont disponibles du Lundi au Vendredi de 9h à 18h

Il est temps de prendre contact

Vous le savez maintenant, vous avez tout d’un propriétaire, faites le point avec nos conseillers.

04 67 14 13 29*

*prix d’un appel local / Vos interlocuteurs sont disponibles du Lundi au Vendredi de 9h à 18h